Beograd, Zvezdara, Lokal, 412 m2, Izdavanje

Beograd, Zvezdara

Podaci

Šifra oglasa B1-6145
Tip Lokal
Ukupna cena 13.843 €
Kvadratura 412 m2
Broj soba 0.0

Opis

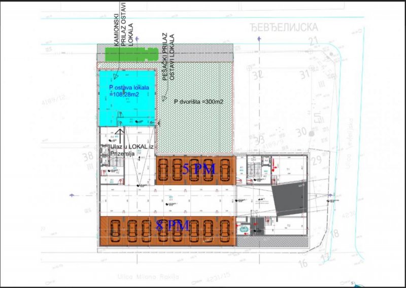
U prilici smo da Vam ponudimo fantastičan lokal u ulici Milan Rakića, koji se nalazi u sklopu novog stambeno-poslovnog objekta u izgradnji. Poslovni prostor je projektovan kao jedna celina, ukupne površine 412 m², uz mogućnost zakupa magacinskog prostora od 108 m², koji se jednim delom nalazi ispod lokala. Veza između lokala i magacinskog prostora predviđena je putem teretnog lifta, što omogućava efikasnu i jednostavnu manipulaciju robom.

Prilaz magacinskom prostoru je direktno iz Đevđelijske ulice, gde je projektovana dok rampa na visini +1, 2 m, što omogućava da se roba direktno iz kamiona ubacuje u magacin – idealno rešenje za maloprodajne lance, distributivne centre, specijalizovane prodavnice ili showroom prostore.

U jednom delu lokala predviđena su tri toaleta, što dodatno doprinosi funkcionalnosti prostora.

Posebna pogodnost je činjenica da je objekat trenutno u izgradnji, što budućim zakupcima pruža mogućnost da prostor prilagode sopstvenim potrebama i standardima poslovanja.

Grejanje i hlađenje nisu unapred definisani, već je ostavljena mogućnost zakupcima da izaberu sistem i način koji im najviše odgovara, dok investitor može izvršiti projektovanje i realizaciju odabranog rešenja.

Za sve dodatne informacije i dogovor oko prezentacije pozovite BL&CO.

Karakteristike

Kontakt

NEWSLETTER

Prijavite se na naš Newsletter i budite informisani na vreme o novim nekretninama.

  • Telefon

  • +381 11 40 10 888

  • Br. u registru

  • #375