Beograd, Voždovac, Stan, 43 m2, Prodaja

Beograd, Voždovac

Podaci

Šifra oglasa B1-5924
Tip Stan
Ukupna cena 150.500 €
Kvadratura 43 m2
Broj soba 1.5
Parking Da

Opis

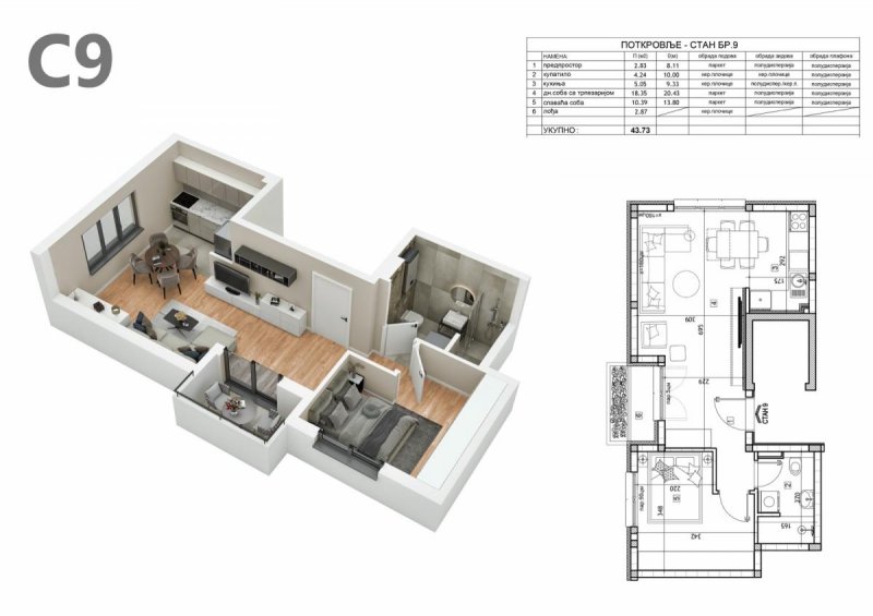
U prilici smo da vam ponudimo stan kvadrature koja se retko nalazi u ponudi. Sastoji se od terase, kupatila, kuhinje, dnevne i odvojene spavaće sobe. Stan se nalazi na odličnoj lokaciji u blizini Južnog bulevara. U pitanju je visokokvalitetna gradnja sa perfektnom izolacijom zidova. Podešavanje kalorimetra omogućava uštedu u grejanju i plaćanje po potrošnji. U blizini stana se nalazi autoput, ulica Maksima Gorkog, a kroz nekoliko minuta se dolazi do centra Vračara. U okruženju se nalaze škole, obdaništa, pošta, apoteka, hram Preobraženja Gospodnjeg, Opština Voždovac itd. Stan je odlična investicija za izdavanje. Useljenje je u maju 2026. godine. Cena garažnog mesta u zgradi se kreće od 22. 500, 00- 25. 000, 00 EUR/kom + PDV. Bez provizije. Za više informacija kontaktirajte nas na tel. +381637504065

EN

We are pleased to offer you an apartment with a layout that is rarely available on the market.

It consists of a terrace, bathroom, kitchen, living room, and a separate bedroom.

The apartment is located in an excellent area near Južni Bulevar. It is a high-quality construction with outstanding wall insulation. The heating system includes a calorimeter, allowing for energy savings and payment based on actual consumption.

The property is close to the highway and Maksima Gorkog Street, and just a few minutes away from the center of Vračar. The surrounding area features schools, kindergartens, a post office, pharmacy, the Church of the Transfiguration of the Lord, the Voždovac Municipality building, and more.

This apartment is an excellent investment opportunity for rental purposes.

The price of a garage space in the building ranges from €22, 500 to €25, 000 + VAT per unit.

For more information, please contact us at: +381 63 7504065.

Karakteristike

  • Novogradnja
  • Lift
  • Interfon
  • U izgradnji
  • Terasa
  • Garaža

Kontakt

NEWSLETTER

Prijavite se na naš Newsletter i budite informisani na vreme o novim nekretninama.

  • Telefon

  • +381 11 40 10 888

  • Br. u registru

  • #375