Beograd, Novi Beograd, Office, 379 m2, Rent

Beograd, Novi Beograd

Information

Ad ID B1-5991
Type Office
Total price 8,085 €
Surface 379 m2
Number of rooms 0.0
Number of bathrooms 2
Parking place Yes
Heating Heat pumps

Description

The displayed price includes the rent and all utility/operating costs (including electricity, water and sewage, waste collection, physical access control, supervision and seasonal parking maintenance, as well as cleaning of the entrance and common areas of the building).

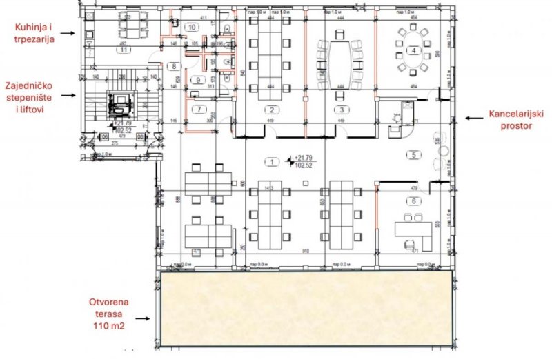
A premium, fully functional office in New Belgrade — combining style, comfort, and efficiency. The space features an open space area + 4 glass-partitioned offices, abundant natural light, modern finishes, and a large private terrace accessible exclusively to tenants.

Key Features:

• Open space + 4 offices

• Floor tiles, easy maintenance

• Large windows, plenty of daylight

• Lift + staircase access

• Bathroom + kitchen area

• Fully installed internet/cabling

• Heating/cooling via heat pumps & fan coils

• Exclusive 110 m² terrace for breaks, meetings & events

• Building includes a stylish employee restaurant on the 7th floor

Details:

• Location: New Belgrade

• Size: 434 m² office with 110 m² terrace

• Chargeable area: 379 m² (terrace usage calculation: 110/2)

• Ceiling height: 2. 85 m

• Price: €21/m² + VAT

• Add on: 126€ + VAT

• Floor: 6

• Parking ratio: 1 PM / 100 m²

• Available immediately

For more information or viewings: 063/899-48-40 Dusan Naic,

Brian Lack & Co Real Estate Agency

Features

  • Newly built
  • Internet
  • Cable
  • Terrace

Contact

NEWSLETTER

Sign up for our Newsletter and get informed on time for new estate properties

  • Phone

  • +381 11 40 10 888

  • Registry Number

  • #375